持續創新,共創共享
近年來,隨著食品產業的不斷發展,食品廠污水站臭氣問題也日益突出。這些臭氣不僅會對周邊環境產生不利影響,還會對人們的身體健康造成危害。因此,采取有效的治理方案來處理食品廠污水站的臭氣問題至關重要。

在選擇治理方案時,需要考慮到不同的因素,如污水站的規模、地理位置、處理工藝等。一般來說,食品廠污水站的臭氣來源主要包括有機廢氣、氨氣、硫化氫等物質。這些氣體產生的原因主要是由于污水中的有機物質在厭氧和好氧菌作用下分解所產生的。
以屠宰場臭氣處理為例,屠宰場臭氣處理工藝一般選用方法:
屠宰場臭氣處理工藝,應根據該屠宰場具體工程情況進行工藝選型設計,才更具有針對性。
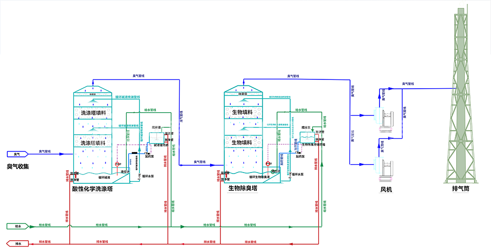
屠宰場臭氣主要成分為氨氣、硫化氫等惡臭氣體,目前對于惡臭氣體處理方法,常見主要有化學除臭法(酸性/堿性)、生物除臭法、活性炭吸附法、生物濾池法、UV光解除臭法、高壓噴霧系統等。
以屠宰場臭氣處理為例,屠宰場臭氣處理工藝一般選用工藝:


在選擇治理方案時,需要考慮污水站的實際情況和具體需求。同時,還需要考慮到治理方案的經濟性、可行性和長期性綜合比較各種治理方案,具體的治理方案還需根據實際情況來確定。
適用范圍
ZHONGYUAN LVFENG
產品適用于屠宰廠、肉加工廠、食品廠污水站等惡臭氣體的除臭凈化處理。

客戶見證
ZHONGYUAN LVFENG
綠豐環保已經幫助100+食品企業解決廢水治理及臭氣治理難題

項目現場
ZHONGYUAN LVFENG



掃二維碼 微信關注
詳細咨詢
聯系綠豐環保
12年專注食品工業水治理一站式服務
在這里統統幫您解決!
地址:河南省新鄉市國家863新鄉科技產業園T12
15343739724